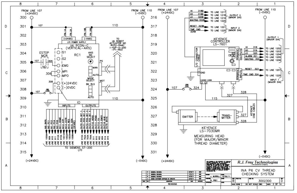
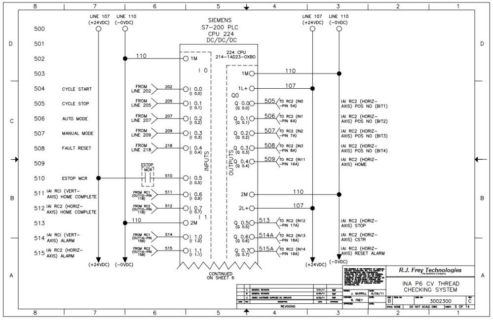
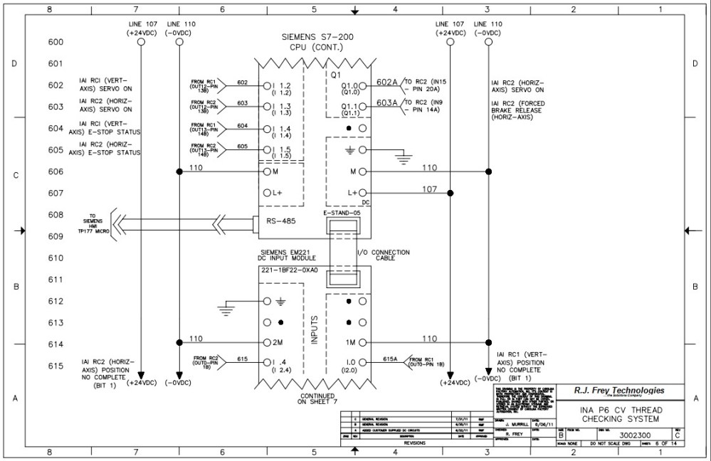
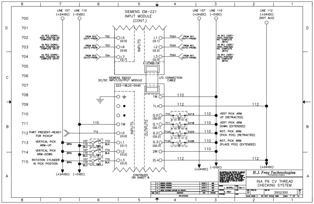
R.J. Frey Technologies provides “turn-key” electrical control system designs for automated machine and process systems. We are adept in integrating stepper/servo controllers, multi-axis cartesian robotic systems, SCARA robotic systems, pick-n-place systems, rotary indexers, machine vision systems, process sensors, process control actuators, PLC programming (AB and Siemens controllers), and HMI’s. We design and build custom OEM electrical panels. RJFT also has experience in the design and build of custom process instrumentation and sensors.














